Estate Agents in Lurgan, Northern Ireland
Radius
Type
Sale/Rent
Price Range From Up to to
Min Price
Max Price
Bedrooms Beds Min Beds Max to Beds
Min Beds
Max Beds
Search
Advanced Options:
Advanced Search >

Property Styles

Land Types

Furnished Types

Property Attributes

Close Advanced
« Back
Sale agreed | 3 Bed Terrace House |
Sale agreed £85,000

36 Gilford Road Lurgan , BT66 7DZ

Sale agreed £85,000

Key Information

Address 36 Gilford Road, Lurgan
Style Terrace House
Status Sale agreed
Price Offers around £85,000
Bedrooms 3
Bathrooms 1
Receptions 1
Heating Oil
EPC Rating D59/D64

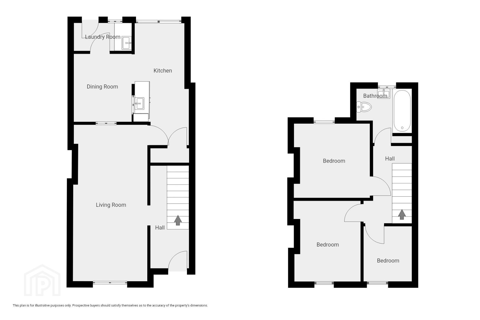
This mid-terrace property is in need of modernisation but offers fantastic potential, with three bedrooms, a large living room, off-road parking, and ground floor extension providing a more generously sized kitchen/diner. Just a few minutes drive from the town centre, the house boasts a fantastic location in a popular area, and would be ideal for investors or builders seeking a project to which they can add value.

Summary

  • Requires modernisation
  • Ideal for investors or builders seeking a project to which they can add value
  • Ground floor extension
  • Three bedrooms
  • Large living room
  • Off-road parking

Additional Information

ENTRANCE HALL
PVC door.

LIVING ROOM

KITCHEN / DINER

UTILITY ROOM
Laminate units, butcher block countertops, laminate splashback.

FIRST FLOOR LANDING

BATHROOM
Walls partially panelled and partially tiled, white suite comprising low flush WC, half pedestal wash hand basin, panel bath with shower extension and electric shower above.

BEDROOM 1
Timber flooring.

BEDROOM 2
Timber flooring, fitted open wardrobes.

BEDROOM 3
Timber flooring, fitted open wardrobe.

EXTERIOR
Large car port to rear of property, steel shed.

Disclaimer:
These particulars, whilst believed to be accurate, are set out as a general guideline and do not constitute any part of an offer or contract. Intending Purchasers should not rely on them as statements or representation of fact, but must satisfy themselves by inspection or otherwise as to their accuracy. Please note that we have not tested any apparatus, equipment, fixtures, fittings or services including central heating and so cannot verify they are in working order or fit for their purpose. Furthermore, solicitors should confirm if moveable items described in the sales particulars are in fact included in the sale since circumstances do change during the marketing or negotiations. Although we try to ensure accuracy, if measurements are used in this listing, they may be approximate. Therefore if intending Purchasers need accurate measurements to order carpeting or to ensure existing furniture will fit, they should take such measurements themselves. Photographs are reproduced for general information and it must not be inferred that any item is included for sale with the property.

Need some more information?

Fill in your details below and a member of our team will get back to you.

Please check you have entered all details correctly: