Estate Agents in Lurgan, Northern Ireland
Radius
Type
Sale/Rent
Price Range From Up to to
Min Price
Max Price
Bedrooms Beds Min Beds Max to Beds
Min Beds
Max Beds
Search
Advanced Options:
Advanced Search >

Property Styles

Land Types

Furnished Types

Property Attributes

Close Advanced
« Back
For sale | 3 Bed End Townhouse |
Offers around £144,940

197 Belvedere Manor Lurgan , BT67 9NY

Offers around £144,940

Key Information

Address 197 Belvedere Manor, Lurgan
Style End Townhouse
Status For sale
Price Offers around £144,940
Bedrooms 3
Bathrooms 1
Receptions 1
Heating Oil

This end townhouse features three bedrooms and represents a fantastic opportunity for both first time buyers and investors alike. Boasting a large, fully enclosed rear garden, a multi-vehicle driveway, and located just a short walk from St. Ronan's College, this property would make an ideal family home.

Summary

  • End townhouse
  • Three bedrooms
  • Large, fully enclosed rear garden
  • Multi-vehicle driveway
  • Short walk from St. Ronan's College

Additional Information

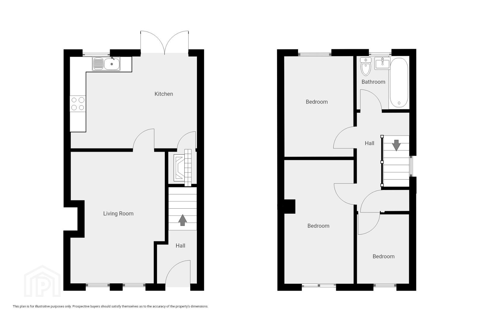
ENTRANCE HALL
Timber door.

LIVING ROOM
Laminate flooring, granite fireplace with timber surround and electric insert.

KITCHEN
Laminate units, fitted oven, fitted glass hob, stainless steel extractor fan, tiled splash back, tiled flooring, storage cupboard, french doors leading to rear garden.

FIRST FLOOR LANDING
Attic access point, hot press.

BEDROOM 1

BEDROOM 2

BEDROOM 3

BATHROOM
Tiled flooring, partially tiled walls, white suite comprising low flush WC, pedestal wash hand basin, panel bath with electric shower above.

GARDENS
Rear garden fully enclosed and laid to lawn with paved patio area. Front garden laid to lawn with large multi-vehicle driveway.

Disclaimer:

These particulars are provided for general information purposes only and, while believed to be correct, do not constitute any part of an offer or contract. Prospective purchasers should not rely on them as statements or representations of fact and must satisfy themselves by inspection or otherwise as to their accuracy.

We have not tested any apparatus, equipment, fixtures, fittings or services, including central heating systems, plumbing or electrical installations, and cannot verify that they are in working order or fit for their intended purpose. All services and appliances should be independently verified by the purchaser’s solicitor or surveyor.

Any reference to alterations, extensions or use of the property is not a statement that necessary planning permissions, building regulations approval or other statutory consents have been obtained. Purchasers should satisfy themselves in this regard.

All measurements are approximate. Purchasers requiring exact measurements for the installation of carpets, furnishings or other equipment should take such measurements themselves. Photographs are provided for guidance only and it should not be assumed that any contents shown are included in the sale.

Need some more information?

Fill in your details below and a member of our team will get back to you.

Please check you have entered all details correctly:

Similar Properties