Estate Agents in Lurgan, Northern Ireland
Radius
Type
Sale/Rent
Price Range From Up to to
Min Price
Max Price
Bedrooms Beds Min Beds Max to Beds
Min Beds
Max Beds
Search
Advanced Options:
Advanced Search >

Property Styles

Land Types

Furnished Types

Property Attributes

Close Advanced
« Back
Sale agreed | 3 Bed Semi-detached House |
Sale agreed £157,500

148 Belvedere Manor Lurgan , BT67 9NW

Sale agreed £157,500

Key Information

Address 148 Belvedere Manor, Lurgan
Style Semi-detached House
Status Sale agreed
Price Offers around £157,500
Bedrooms 3
Bathrooms 1
Receptions 1
Heating Oil
EPC Rating D60/C71

Situated in a quiet cul-de-sac, this semi-detached property is spacious throughout and has been recently redecorated. Boasting three well proportioned bedrooms, a large living room, and a kitchen/diner that opens to a fully enclosed and generously sized rear garden, this would be an ideal family home. The property also boasts a new condensing oil boiler, a multi-vehicle driveway, and a superb location just a short walk from St. Ronan's College.

Summary

  • Three bedrooms
  • Recently redecorated
  • New condensing boiler
  • Spacious, fully enclosed rear garden
  • Short walk from St. Ronan's College

Additional Information

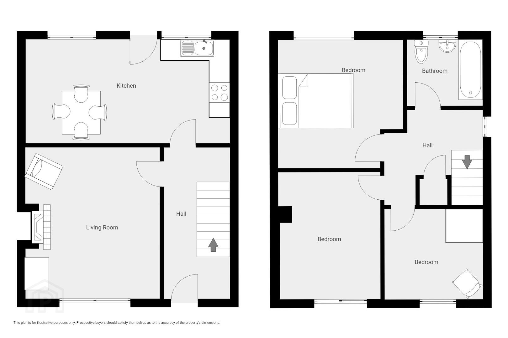
ENTRANCE HALL
Timber door with matching sidelight.

LIVING ROOM
Laminate flooring, open cast iron fireplace with decorative tile inserts and timber surround.

KITCHEN
Laminate units, tiled flooring, tiled splash back, fitted oven, fitted hob, integrated extractor fan.

FIRST FLOOR LANDING
Attic access point, hot press.

BEDROOM 1
Laminate flooring.

BEDROOM 2
Laminate flooring.

BEDROOM 3
Laminate flooring.

BATHROOM
Fully tiled walls and flooring, white suite comprising low flush WC, pedestal wash hand basin, panel bath with shower extension.

GARDENS
Rear garden fully enclosed and laid to lawn with garden shed and double gates leading to driveway. Front garden laid to lawn with multi-vehicle driveway.

Disclaimer

These particulars are provided for general information purposes only and, while believed to be correct, do not constitute any part of an offer or contract. Prospective purchasers should not rely on them as statements or representations of fact and must satisfy themselves by inspection or otherwise as to their accuracy.

We have not tested any apparatus, equipment, fixtures, fittings or services, including central heating systems, plumbing or electrical installations, and cannot verify that they are in working order or fit for their intended purpose. All services and appliances should be independently verified by the purchaser’s solicitor or surveyor.

Any reference to alterations, extensions or use of the property is not a statement that necessary planning permissions, building regulations approval or other statutory consents have been obtained. Purchasers should satisfy themselves in this regard.

All measurements are approximate. Purchasers requiring exact measurements for the installation of carpets, furnishings or other equipment should take such measurements themselves. Photographs are provided for guidance only and it should not be assumed that any contents shown are included in the sale.

Need some more information?

Fill in your details below and a member of our team will get back to you.

Please check you have entered all details correctly:

Similar Properties