Estate Agents in Lurgan, Northern Ireland
Radius
Type
Sale/Rent
Price Range From Up to to
Min Price
Max Price
Bedrooms Beds Min Beds Max to Beds
Min Beds
Max Beds
Search
Advanced Options:
Advanced Search >

Property Styles

Land Types

Furnished Types

Property Attributes

Close Advanced
« Back
Sale agreed | 4 Bed End-terrace House |
Sale agreed £124,950

92 Edward Street Lurgan , BT66 6DD

Sale agreed £124,950

Key Information

Address 92 Edward Street, Lurgan
Style End-terrace House
Status Sale agreed
Price Offers around £124,950
Bedrooms 4
Bathrooms 3
Receptions 1
Heating Gas
EPC Rating D65/C71

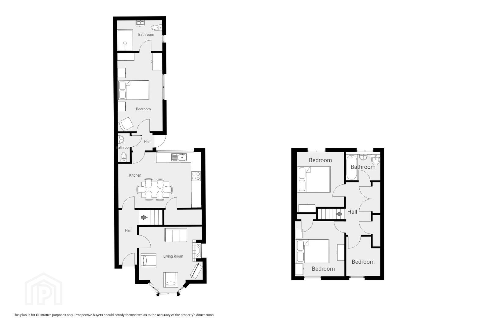
Situated on the ever popular Edward Street, this end terrace property is beautifully presented and represents a fantastic opportunity for both first-time buyers and investors alike. Featuring a large ground floor extension, the property offers four bedrooms, including a ground floor bedroom with en-suite, making it ideal for anyone seeking single floor living. Also boasting gas heating, solid wood flooring, and a fully enclosed rear garden, this house is conveniently located just a short walk from the town centre.

Summary

  • Four bedrooms (including ground floor master)
  • Three bathrooms (including en-suite)
  • Gas heating
  • Solid wood flooring
  • Short walk from town centre

Additional Information

ENTRANCE HALL
PVC door.

LIVING ROOM
Solid wood flooring, marble fireplace with electric insert.

KITCHEN
Laminate units, tiled flooring, tiled splash back, fitted oven, fitted glass hob, stainless steel extractor hood, storage cupboard.

BACK HALL
Tiled flooring.

WC
White suite comprising low flush WC, wall mounted wash hand basin, tiled walls.

BEDROOM 1
Solid wood flooring.

EN-SUITE
White suite comprising low flush WC, vanity wash hand basin, shower with disabled access shower enclosure, non-slip flooring, tiled walls, attic access point.

FIRST FLOOR LANDING
Hot press, storage cupboard, attic access point.

BEDROOM 2
Solid wood flooring, built-in wardrobe.

BEDROOM 3
Solid wood flooring.

BEDROOM 4
Solid wood flooring.

BATHROOM
Fully tiled walls and flooring, white suite comprising low flush WC, pedestal wash hand basin, panel bath with shower extension and electric shower above.

GARDENS
Rear garden enclosed and fully paved. Front garden enclosed and paved with decorative patio area.

Disclaimer:
These particulars, whilst believed to be accurate, are set out as a general guideline and do not constitute any part of an offer or contract. Intending Purchasers should not rely on them as statements or representation of fact, but must satisfy themselves by inspection or otherwise as to their accuracy. Please note that we have not tested any apparatus, equipment, fixtures, fittings or services including central heating and so cannot verify they are in working order or fit for their purpose. Furthermore, solicitors should confirm if moveable items described in the sales particulars are in fact included in the sale since circumstances do change during the marketing or negotiations. Although we try to ensure accuracy, if measurements are used in this listing, they may be approximate. Therefore if intending Purchasers need accurate measurements to order carpeting or to ensure existing furniture will fit, they should take such measurements themselves. Photographs are reproduced for general information and it must not be inferred that any item is included for sale with the property.

Need some more information?

Fill in your details below and a member of our team will get back to you.

Please check you have entered all details correctly: