Estate Agents in Lurgan, Northern Ireland
Radius
Type
Sale/Rent
Price Range From Up to to
Min Price
Max Price
Bedrooms Beds Min Beds Max to Beds
Min Beds
Max Beds
Search
Advanced Options:
Advanced Search >

Property Styles

Land Types

Furnished Types

Property Attributes

Close Advanced
« Back
For sale | 3 Bed Detached Bungalow |
Offers around £274,950

3 Ferngrove Park Aghagallon , BT67 0HD

Offers around £274,950

Key Information

Address 3 Ferngrove Park, Aghagallon
Style Detached Bungalow
Status For sale
Price Offers around £274,950
Bedrooms 3
Bathrooms 1
Receptions 1
Heating Oil
EPC Rating D56/D67

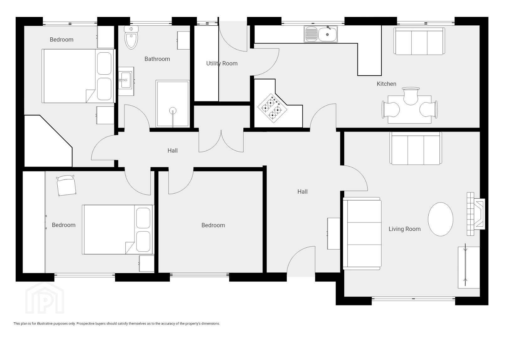
Located in a quiet cul-de-sac in Aghagallon, this detached bungalow offers a rare opportunity on the market. Featuring three double bedrooms, a large living room, and a stunning, contemporary bathroom with walk-in shower, this house would be ideal for families or anyone seeking a comfortable, single-floor living space. Also boasting a detached garage, a multi-vehicle driveway, and a fully enclosed, private rear garden, this is a property that should not be missed, and is conveniently located just a short walk from the centre of the village.

Summary

  • Detached bungalow
  • Three double bedrooms
  • Stunning, contemporary bathroom
  • Spacious living room
  • Private and fully enclosed rear garden

Additional Information

ENTRANCE HALL
PVC door and matching sidelights, laminate flooring, hot press.

LIVING ROOM
Open cast iron fireplace with tiled hearth and timber surround, laminate flooring.

KITCHEN
Partial tiled flooring, partial laminate flooring, solid wood units, fitted oven, fitted glass hob, integrated extractor hood, glazed display cabinet.

UTILITY ROOM
Solid wood units, tiled flooring, plumbed for washer and dryer.

BEDROOM 1
Laminate flooring, fitted wardrobes with sliding mirrored doors.

BEDROOM 2
Fitted wardrobes.

BEDROOM 3

BATHROOM
Tiled walls, non-slip flooring, white suite comprising low flush WC, vanity wash hand basin, electric shower with walk-in enclosure, fitted cabinet.

GARAGE
Up-and-over door, electric supply.

GARDENS
Rear garden fully enclosed and laid to lawn with paved patio area, garden shed. Front garden laid to lawn with large, multi-vehicle driveway.

Disclaimer:
These particulars, whilst believed to be accurate, are set out as a general guideline and do not constitute any part of an offer or contract. Intending Purchasers should not rely on them as statements or representation of fact, but must satisfy themselves by inspection or otherwise as to their accuracy. Please note that we have not tested any apparatus, equipment, fixtures, fittings or services including central heating and so cannot verify they are in working order or fit for their purpose. Furthermore, solicitors should confirm if moveable items described in the sales particulars are in fact included in the sale since circumstances do change during the marketing or negotiations. Although we try to ensure accuracy, if measurements are used in this listing, they may be approximate. Therefore if intending Purchasers need accurate measurements to order carpeting or to ensure existing furniture will fit, they should take such measurements themselves. Photographs are reproduced for general information and it must not be inferred that any item is included for sale with the property.

Need some more information?

Fill in your details below and a member of our team will get back to you.

Please check you have entered all details correctly: