Estate Agents in Lurgan, Northern Ireland
Radius
Type
Sale/Rent
Price Range From Up to to
Min Price
Max Price
Bedrooms Beds Min Beds Max to Beds
Min Beds
Max Beds
Search
Advanced Options:
Advanced Search >

Property Styles

Land Types

Furnished Types

Property Attributes

Close Advanced
« Back
Sale agreed | 3 Bed Detached House |
Sale agreed £184,950

23 The Grange , Lurgan Co. Armagh , BT67 9BU

Sale agreed £184,950

Key Information

Address 23 The Grange, Lurgan, Co. Armagh
Style Detached House
Status Sale agreed
Price Offers around £184,950
Bedrooms 3
Bathrooms 1
Receptions 2
Heating Gas
EPC Rating F35/D68

Located in a quiet cul-de-sac in the ever popular development of The Grange, this detached house is beautifully presented throughout and represents fantastic value on the current market. Recently redecorated, and with a brand new gas heating install, the property boasts three bedrooms, two reception rooms, as well as a spacious and fully enclosed rear garden. Enjoying a great site in a mature, well settled development, the property is conveniently located just a short drive from the town centre and provides easy access to the M1 motorway.

Summary

  • Recently redecorated throughout
  • Three bedrooms
  • Two reception rooms
  • Spacious, fully enclosed rear garden
  • Fantastic location
  • Newly installed gas heating

Additional Information

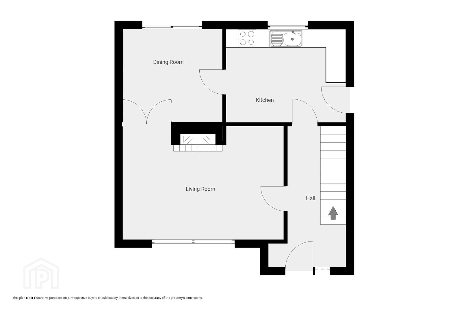
ENTRANCE HALL
Partially glazed PVC door with matching sidelight, tiled flooring, cloak storage.

LIVING ROOM
Open marble fireplace with carved mahogany surround, laminate flooring, french doors leading to Dining Room.

DINING ROOM
Laminate flooring.

KITCHEN
High and low laminate units, fitted oven, fitted glass hob, tiled splash back, tiled flooring, stainless steel extractor hood, plumbed for washer/dishwasher.

FIRST FLOOR LANDING
Attic access point, hot press.

BATHROOM
White suite comprising low flush WC, pedestal wash hand basin, panel bath with shower extension, PVC wall panelling.

BEDROOM 1
Laminate flooring, built-in wardrobe.

BEDROOM 2

BEDROOM 3
Laminate flooring.

GARDENS
Rear garden fully enclosed and laid to lawn, garden shed. Front garden laid to lawn with mutli-vehicle driveway.

Disclaimer:
These particulars, whilst believed to be accurate, are provided for guidance only and do not form part of any offer or contract. Prospective purchasers should not rely on them as statements or representations of fact, but must satisfy themselves through inspection or other means as to their accuracy.

Please note that we have not tested any apparatus, equipment, fixtures, fittings, or services (including central heating) and therefore cannot verify their working condition or suitability for purpose. It is the responsibility of solicitors to confirm which moveable items described in the sales particulars are included in the sale, as this may change during the marketing or negotiation process.

Although every effort is made to ensure accuracy, any measurements provided may be approximate. If precise measurements are required—for example, for ordering flooring or checking furniture fit—interested parties should take their own measurements.

Photographs are provided for general information only and should not be taken to indicate that any specific items are included in the sale of the property.

 

Need some more information?

Fill in your details below and a member of our team will get back to you.

Please check you have entered all details correctly: